恵比寿駅5分 賃貸事務所、賃貸オフィス:恵比寿フラワーマンション 5A号室
恵比寿西一丁目の五差路近く、利便性の高いロケーションの事務所です。
-
アクセス
- 山手線 恵比寿駅 から 徒歩5分
-
賃料
- 22万 円
-
管理費等
- 0 円
-
礼金
- 1ヶ月
-
敷金
- 4ヶ月
-
専有面積
- 59.01m 2 ( 17.85坪 )
-
築年月
- 1968年07月 ( 築57年 )
詳細・設備・条件・取引について
基本
| 問い合わせ番号 | shinozaki_2_2446 | ||
|---|---|---|---|
| アクセス | 山手線 恵比寿駅 から 徒歩5分 | 種別 | 事務所(一部) |
| 所在地 |
東京都渋谷区恵比寿西1丁目 16番2号
|
学校区 | - |
| 問い合わせ番号 | shinozaki_2_2446 |
|---|---|
| アクセス | 山手線 恵比寿駅 から 徒歩5分 |
| 種別 | 事務所(一部) |
| 所在地 |
東京都渋谷区恵比寿西1丁目 16番2号
|
費用
| 賃料 | 22万円 | 管理・共益費 | 0円 |
|---|---|---|---|
| 礼金 | 1ヶ月 | 敷金 | 4ヶ月 |
| 雑費 | - | 償却 | なし、 - |
| 家賃保証会社 | 必加入、 その他、 【宅建ハトさん保証】初回保証料:総賃料等の100%。以降、年間保証料:月額賃料等の10%(下限5,000円 上限50,000円) | 保険料 | - |
| 契約期間 | 定期借家、 3年 | 更新料 | - |
| 仲介手数料 |
1ヶ月 (税込 22万円)
|
| 賃料 | 22万円 |
|---|---|
| 管理・共益費 | 0円 |
| 礼金 | 1ヶ月 |
| 敷金 | 4ヶ月 |
| 償却 | なし、 - |
| 雑費 | - |
| 家賃保証会社 | 必加入、 その他、 【宅建ハトさん保証】初回保証料:総賃料等の100%。以降、年間保証料:月額賃料等の10%(下限5,000円 上限50,000円) |
| 保険料 | - |
| 契約期間 | 定期借家、 3年 |
| 更新料 | - |
| 仲介手数料 |
1ヶ月 (税込 22万円)
|
建物
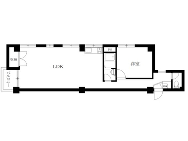
| 間取り | 南東向き | 専有面積 | 59.01m 2 ( 17.85坪 ) |
|---|---|---|---|
| 構造 | 鉄筋コンクリート造 | バルコニー面積 | - |
| 所在階 / 階数 | 5階 / 8階建 | 完成年月 | 1968年07月 ( 築57年 ) |
| 管理 | - | 総戸数 | 18戸 |
| 駐車場 | - | バイク置場 | - |
| 駐輪場 | - | ||
| リフォーム | - | リノベーション | - |
| こだわり条件 |
|
||
| 設備・条件 | オートロック、宅配ボックス、フローリング、エアコン、システムキッチン、エレベーター | ||
| 間取り | 南東向き | ||
|---|---|---|---|
| 専有面積 | 59.01m 2 ( 17.85坪 ) | ||
| 構造 | 鉄筋コンクリート造 | ||
| バルコニー面積 | - | ||
| 所在階 / 階数 | 5階 / 8階建 | ||
| 完成年月 | 1968年07月 ( 築57年 ) | ||
| 管理 | - | ||
| 総戸数 | 18戸 | ||
| 駐車場 | - | ||
| バイク置場 | - | ||
| 駐輪場 | - | ||
| リフォーム | - | ||
| リノベーション | - | ||
| こだわり条件 | |||
| 設備・条件 | オートロック、宅配ボックス、フローリング、エアコン、システムキッチン、エレベーター | ||
その他
| 現況 ・ 入居 | 空室 ・ 即時 | 取引態様 | 仲介 |
|---|---|---|---|
| 次回更新日 | 2026/04/04 | 担当者 | - |
| 現況 ・ 入居 | 空室 ・ 即時 |
|---|---|
| 取引態様 | 仲介 |
| 次回更新日 | 2026/04/04 |
| 担当者 | - |
恵比寿駅5分 賃貸事務所、賃貸オフィス:恵比寿フラワーマンションの詳しい情報やお問い合わせはこちら!
お問い合わせ先:株式会社 シノザキ
免許番号:東京都知事(12)第35819号
営業時間:9:00~18:30 定休日:土曜日・日曜・祝日
TEL:03-5420-8081
こちらの物件もあります。
52万8000 円
東京都渋谷区恵比寿西
恵比寿駅から徒歩 2分
60万5000 円
東京都渋谷区恵比寿西
恵比寿駅から徒歩 5分
239万9617 円
東京都渋谷区恵比寿
恵比寿駅から徒歩 4分
55万 円
東京都渋谷区恵比寿西
恵比寿駅から徒歩 2分
87万4500 円
東京都渋谷区恵比寿西
恵比寿駅から徒歩 2分
相談
東京都渋谷区恵比寿西
恵比寿駅から徒歩 5分
40万7000 円
東京都渋谷区恵比寿西
恵比寿駅から徒歩 7分
44万 円
東京都渋谷区恵比寿南
恵比寿駅から徒歩 3分
31万9000 円
東京都渋谷区東
恵比寿駅から徒歩 1分
相談
東京都渋谷区恵比寿西
恵比寿駅から徒歩 4分
20万9000 円
東京都渋谷区恵比寿西
恵比寿駅から徒歩 3分
55万 円
東京都渋谷区恵比寿西
恵比寿駅から徒歩 4分
182万2689 円
東京都渋谷区恵比寿
恵比寿駅から徒歩 1分
132万 円
東京都目黒区三田
恵比寿駅から徒歩 8分
217万3248 円
東京都渋谷区恵比寿西
恵比寿駅から徒歩 4分






恵比寿西一丁目、五差路近くの便利なエリアに位置する事務所です。
代官山方面へも徒歩圏内で、来訪者にも説明しやすい立地です。
なお、ビルの利用時間に制限がありますので、ご内見時にご確認ください。