恵比寿駅1分 賃貸店舗:タチムラビル 4階
恵比寿駅徒歩1分、駒沢通り角地の視認性良好な事務所物件。
-
アクセス
- 山手線 恵比寿駅 から 徒歩1分
-
賃料
- 31万9000 円
-
管理費等
- 0 円
-
礼金
- 2ヶ月
-
保証金
- 10ヶ月
-
専有面積
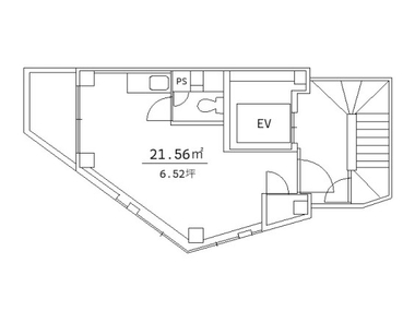
- 21.56m 2 ( 6.52坪 )
-
築年月
- 2002年09月 ( 築23年 )
間取り図
詳細・設備・条件・取引について
基本
| 問い合わせ番号 | shinozaki_2_2538 | ||
|---|---|---|---|
| アクセス | 山手線 恵比寿駅 から 徒歩1分 | 種別 | 店舗(一部) |
| 所在地 |
東京都渋谷区東3丁目 26-4
|
学校区 | - |
| 問い合わせ番号 | shinozaki_2_2538 |
|---|---|
| アクセス | 山手線 恵比寿駅 から 徒歩1分 |
| 種別 | 店舗(一部) |
| 所在地 |
東京都渋谷区東3丁目 26-4
|
費用
| 賃料 | 31万9000円 | 管理・共益費 | 0円 |
|---|---|---|---|
| 礼金 | 2ヶ月 | 保証金 | 10ヶ月 |
| 雑費 | - | 償却 | 退去時、 3ヶ月 |
| 家賃保証会社 | 必加入、 指定の保証会社にご加入いただきます。(与信内容により免除の場合あり) | 保険料 | - |
| 契約期間 | 定期借家、 5年 | 更新料 | - |
| 仲介手数料 |
1ヶ月 (税込 31万9000円)
|
その他費用 (月次等) |
看板使用料、33000円
|
| 賃料 | 31万9000円 |
|---|---|
| 管理・共益費 | 0円 |
| 礼金 | 2ヶ月 |
| 保証金 | 10ヶ月 |
| 償却 | 退去時、 3ヶ月 |
| 雑費 | - |
| 家賃保証会社 | 必加入、 指定の保証会社にご加入いただきます。(与信内容により免除の場合あり) |
| 保険料 | - |
| 契約期間 | 定期借家、 5年 |
| 更新料 | - |
| 仲介手数料 |
1ヶ月 (税込 31万9000円)
|
| その他費用 (月次等) |
看板使用料、33000円
|
建物
| 間取り | 専有面積 | 21.56m 2 ( 6.52坪 ) | |
|---|---|---|---|
| 構造 | 鉄骨造 | バルコニー面積 | - |
| 所在階 / 階数 | 4階 / 8階建 | 完成年月 | 2002年09月 ( 築23年 ) |
| 管理 | - | 総戸数 | - |
| 駐車場 | - | バイク置場 | - |
| 駐輪場 | - | ||
| リフォーム | - | リノベーション | - |
| こだわり条件 |
|
||
| 設備・条件 | 中途礼金・賃料の1.5ヶ月(2029年4月23日発生) | ||
| 間取り | |||
|---|---|---|---|
| 専有面積 | 21.56m 2 ( 6.52坪 ) | ||
| 構造 | 鉄骨造 | ||
| バルコニー面積 | - | ||
| 所在階 / 階数 | 4階 / 8階建 | ||
| 完成年月 | 2002年09月 ( 築23年 ) | ||
| 管理 | - | ||
| 総戸数 | - | ||
| 駐車場 | - | ||
| バイク置場 | - | ||
| 駐輪場 | - | ||
| リフォーム | - | ||
| リノベーション | - | ||
| こだわり条件 | |||
| 設備・条件 | 中途礼金・賃料の1.5ヶ月(2029年4月23日発生) | ||
その他
| 現況 ・ 入居 | 空予定 ・ - | 取引態様 | 仲介 |
|---|---|---|---|
| 次回更新日 | 2026/03/09 | 担当者 | - |
| 現況 ・ 入居 | 空予定 ・ - |
|---|---|
| 取引態様 | 仲介 |
| 次回更新日 | 2026/03/09 |
| 担当者 | - |
恵比寿駅1分 賃貸店舗:タチムラビルの詳しい情報やお問い合わせはこちら!
お問い合わせ先:株式会社 シノザキ
免許番号:東京都知事(12)第35819号
営業時間:9:00~18:30 定休日:土曜日・日曜・祝日
TEL:03-5420-8081
こちらの物件もあります。
238万7000 円
東京都渋谷区恵比寿
恵比寿駅から徒歩 4分
20万9000 円
東京都渋谷区恵比寿
恵比寿駅から徒歩 2分
94万6000 円
東京都渋谷区広尾
恵比寿駅から徒歩 5分
22万8800 円
東京都渋谷区東
恵比寿駅から徒歩 5分
27万5000 円
東京都港区南青山
恵比寿駅から徒歩 21分
125万8598 円
東京都渋谷区恵比寿
恵比寿駅から徒歩 5分
99万 円
東京都渋谷区恵比寿西
恵比寿駅から徒歩 3分
57万2000 円
東京都渋谷区恵比寿西
恵比寿駅から徒歩 4分
74万2500 円
東京都渋谷区恵比寿西
恵比寿駅から徒歩 2分
49万5000 円
東京都渋谷区恵比寿
恵比寿駅から徒歩 8分
129万6064 円
東京都渋谷区恵比寿
恵比寿駅から徒歩 3分
63万5525 円
東京都渋谷区恵比寿
恵比寿駅から徒歩 3分
52万8000 円
東京都渋谷区恵比寿西
恵比寿駅から徒歩 2分
相談
東京都渋谷区恵比寿西
恵比寿駅から徒歩 4分
328万4050 円
東京都渋谷区東
恵比寿駅から徒歩 4分





恵比寿駅徒歩1分、駒沢通り沿い角地に立地する事務所物件。
通行量の多い通りに面し、視認性の高い立地です。
現在は不動産会社が入居中で、現状渡し・造作無償となります。
※飲食店は不可となります。