恵比寿駅3分 賃貸事務所、賃貸オフィス:恵比寿A・Mビル 4階
東京メトロ日比谷線「恵比寿駅」5番出口より徒歩約1分!駒沢通り沿いに位置し、視認性に優れたワンフロアオフィス。
-
アクセス
- 山手線 恵比寿駅 から 徒歩3分
-
賃料
- 44万 円
-
管理費等
- 0 円
-
礼金
- 1ヶ月
-
保証金
- 6ヶ月
-
専有面積
- 71.5m 2 ( 21.62坪 )
-
築年月
- 1989年03月 ( 築37年 )
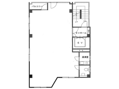
間取り図
詳細・設備・条件・取引について
基本
| 問い合わせ番号 | shinozaki_2_2522 | ||
|---|---|---|---|
| アクセス |
山手線 恵比寿駅
から 徒歩3分
東京メトロ日比谷線 恵比寿駅 から 徒歩1分 |
種別 | 事務所(一部) |
| 所在地 |
東京都渋谷区恵比寿南2丁目 1番11号
|
学校区 | - |
| 問い合わせ番号 | shinozaki_2_2522 |
|---|---|
| アクセス |
山手線 恵比寿駅
から 徒歩3分
東京メトロ日比谷線 恵比寿駅 から 徒歩1分 |
| 種別 | 事務所(一部) |
| 所在地 |
東京都渋谷区恵比寿南2丁目 1番11号
|
費用
| 賃料 | 44万円 | 管理・共益費 | 0円 |
|---|---|---|---|
| 礼金 | 1ヶ月 | 保証金 | 6ヶ月 |
| 雑費 | - | 償却 | なし、 - |
| 家賃保証会社 | 必加入、 【宅建ハトさん保証】初回保証料:総賃料等の100%。以降、年間保証料:月額賃料等の10%(下限5,000円 上限50,000円) | 保険料 | - |
| 契約期間 | 定期借家、 3年 | 更新料 | - |
| 仲介手数料 |
1ヶ月 (税込 44万円)
|
| 賃料 | 44万円 |
|---|---|
| 管理・共益費 | 0円 |
| 礼金 | 1ヶ月 |
| 保証金 | 6ヶ月 |
| 償却 | なし、 - |
| 雑費 | - |
| 家賃保証会社 | 必加入、 【宅建ハトさん保証】初回保証料:総賃料等の100%。以降、年間保証料:月額賃料等の10%(下限5,000円 上限50,000円) |
| 保険料 | - |
| 契約期間 | 定期借家、 3年 |
| 更新料 | - |
| 仲介手数料 |
1ヶ月 (税込 44万円)
|
建物
| 間取り | 北向き | 専有面積 | 71.5m 2 ( 21.62坪 ) |
|---|---|---|---|
| 構造 | 鉄骨鉄筋コンクリート造 | バルコニー面積 | - |
| 所在階 / 階数 | 4階 / 10階建 | 完成年月 | 1989年03月 ( 築37年 ) |
| 管理 | - | 総戸数 | - |
| 駐車場 | - | バイク置場 | - |
| 駐輪場 | - | ||
| リフォーム | - | リノベーション | - |
| こだわり条件 |
|
||
| 設備・条件 | 機械警備(セントラル警備保障) | ||
| 間取り | 北向き | ||
|---|---|---|---|
| 専有面積 | 71.5m 2 ( 21.62坪 ) | ||
| 構造 | 鉄骨鉄筋コンクリート造 | ||
| バルコニー面積 | - | ||
| 所在階 / 階数 | 4階 / 10階建 | ||
| 完成年月 | 1989年03月 ( 築37年 ) | ||
| 管理 | - | ||
| 総戸数 | - | ||
| 駐車場 | - | ||
| バイク置場 | - | ||
| 駐輪場 | - | ||
| リフォーム | - | ||
| リノベーション | - | ||
| こだわり条件 | |||
| 設備・条件 | 機械警備(セントラル警備保障) | ||
その他
| 現況 ・ 入居 | 空予定 ・ 2月上旬 | 取引態様 | 仲介 |
|---|---|---|---|
| 次回更新日 | 2026/03/14 | 担当者 | - |
| 現況 ・ 入居 | 空予定 ・ 2月上旬 |
|---|---|
| 取引態様 | 仲介 |
| 次回更新日 | 2026/03/14 |
| 担当者 | - |
恵比寿駅3分 賃貸事務所、賃貸オフィス:恵比寿A・Mビルの詳しい情報やお問い合わせはこちら!
お問い合わせ先:株式会社 シノザキ
免許番号:東京都知事(12)第35819号
営業時間:9:00~18:30 定休日:土曜日・日曜・祝日
TEL:03-5420-8081
こちらの物件もあります。
88万8250 円
東京都渋谷区恵比寿南
恵比寿駅から徒歩 3分
258万5000 円
東京都渋谷区恵比寿
恵比寿駅から徒歩 5分
20万9000 円
東京都渋谷区恵比寿西
恵比寿駅から徒歩 3分
61万6000 円
東京都渋谷区恵比寿
恵比寿駅から徒歩 5分
95万7000 円
東京都渋谷区広尾
恵比寿駅から徒歩 5分
48万5100 円
東京都渋谷区恵比寿
恵比寿駅から徒歩 4分
57万2000 円
東京都渋谷区恵比寿西
恵比寿駅から徒歩 4分
87万4500 円
東京都渋谷区恵比寿西
恵比寿駅から徒歩 2分
58万9100 円
東京都渋谷区恵比寿西
恵比寿駅から徒歩 5分
22万 円
東京都渋谷区恵比寿西
恵比寿駅から徒歩 5分
890万6535 円
東京都渋谷区恵比寿
恵比寿駅から徒歩 2分
92万1844 円
東京都渋谷区恵比寿西
恵比寿駅から徒歩 4分
22万8800 円
東京都渋谷区東
恵比寿駅から徒歩 5分
220万8921 円
東京都渋谷区恵比寿西
恵比寿駅から徒歩 7分





銀行や郵便局が徒歩圏内にあり、コンビニ・スーパー・飲食店もそろった利便性の高い環境です。
1フロア1テナントの独立性あるレイアウトで、駒沢通りに面しているため、開放感のある眺望が得られます。
事務所利用のみとなります。