恵比駅4分 賃貸事務所、賃貸オフィス:恵比寿ビル 9階
明治通り角地、重厚感あるガラス外観が印象的なオフィスビル。
-
アクセス
- 山手線 恵比寿駅 から 徒歩4分
-
賃料
- 328万4050 円
-
管理費等
- 0 円
-
礼金
- -
-
敷金
- 12ヶ月
-
専有面積
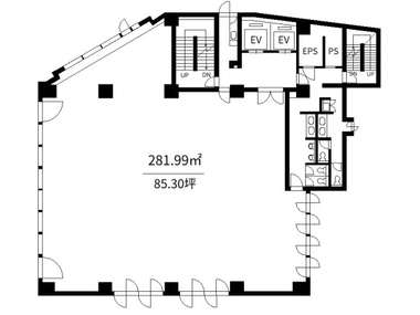
- 281.99m 2 ( 85.3坪 )
-
築年月
- 1992年10月 ( 築33年 )
間取り図
詳細・設備・条件・取引について
基本
| 問い合わせ番号 | shinozaki_2_2569 | ||
|---|---|---|---|
| アクセス |
山手線 恵比寿駅
から 徒歩4分
東急東横線 代官山駅 から 徒歩9分 |
種別 | 事務所(一部) |
| 所在地 |
東京都渋谷区東3丁目 11-10
|
学校区 | - |
| 問い合わせ番号 | shinozaki_2_2569 |
|---|---|
| アクセス |
山手線 恵比寿駅
から 徒歩4分
東急東横線 代官山駅 から 徒歩9分 |
| 種別 | 事務所(一部) |
| 所在地 |
東京都渋谷区東3丁目 11-10
|
費用
| 賃料 | 328万4050円 | 管理・共益費 | 0円 |
|---|---|---|---|
| 礼金 | - | 敷金 | 12ヶ月 |
| 雑費 | - | 償却 | なし、 - |
| 家賃保証会社 | - | 保険料 | - |
| 契約期間 | 定期借家、 3年 | 更新料 | - |
| 仲介手数料 |
1ヶ月 (税込 328万4050円)
|
| 賃料 | 328万4050円 |
|---|---|
| 管理・共益費 | 0円 |
| 礼金 | - |
| 敷金 | 12ヶ月 |
| 償却 | なし、 - |
| 雑費 | - |
| 家賃保証会社 | - |
| 保険料 | - |
| 契約期間 | 定期借家、 3年 |
| 更新料 | - |
| 仲介手数料 |
1ヶ月 (税込 328万4050円)
|
建物
| 間取り | 専有面積 | 281.99m 2 ( 85.3坪 ) | |
|---|---|---|---|
| 構造 | - | バルコニー面積 | - |
| 所在階 / 階数 | 9階 / 9階建 | 完成年月 | 1992年10月 ( 築33年 ) |
| 管理 | - | 総戸数 | - |
| 駐車場 | 敷地内 | バイク置場 | - |
| 駐輪場 | - | ||
| リフォーム | - | リノベーション | - |
| こだわり条件 |
|
||
| 設備・条件 | 空調方式: 個別空調、床仕様・仕上:OA床、コンセント容量: 30VA/㎡ エレベーター: 9人乗1台、11人乗1台、機械警備・管理人常駐 専有部清掃費:別途見積 |
||
| 間取り | |||
|---|---|---|---|
| 専有面積 | 281.99m 2 ( 85.3坪 ) | ||
| 構造 | - | ||
| バルコニー面積 | - | ||
| 所在階 / 階数 | 9階 / 9階建 | ||
| 完成年月 | 1992年10月 ( 築33年 ) | ||
| 管理 | - | ||
| 総戸数 | - | ||
| 駐車場 | 敷地内 | ||
| バイク置場 | - | ||
| 駐輪場 | - | ||
| リフォーム | - | ||
| リノベーション | - | ||
| こだわり条件 | |||
| 設備・条件 | 空調方式: 個別空調、床仕様・仕上:OA床、コンセント容量: 30VA/㎡ エレベーター: 9人乗1台、11人乗1台、機械警備・管理人常駐 専有部清掃費:別途見積 |
||
その他
| 現況 ・ 入居 | 空予定 ・ | 取引態様 | 仲介 |
|---|---|---|---|
| 次回更新日 | 2026/04/07 | 担当者 | - |
| 現況 ・ 入居 | 空予定 ・ |
|---|---|
| 取引態様 | 仲介 |
| 次回更新日 | 2026/04/07 |
| 担当者 | - |
恵比駅4分 賃貸事務所、賃貸オフィス:恵比寿ビルの詳しい情報やお問い合わせはこちら!
お問い合わせ先:株式会社 シノザキ
免許番号:東京都知事(12)第35819号
営業時間:9:00~18:30 定休日:土曜日・日曜・祝日
TEL:03-5420-8081
この建物の空室一覧
| 所在階 | 専有面積 | 坪 | 賃料 | 管理・共益費 | 候補に追加 | 詳細 |
|---|---|---|---|---|---|---|
| 5階 | 281.99m² | 85.3坪 | 328万4050円 | 0円 |
|
|
| 7階 | 281.99m² | 85.3坪 | 328万4050円 | 0円 |
|
|
| 地下1階 | 130.40m² | 39.44坪 | 104万1216円 | 0円 |
|
こちらの物件もあります。
71万5000 円
東京都渋谷区恵比寿西
恵比寿駅から徒歩 5分
48万5100 円
東京都渋谷区恵比寿
恵比寿駅から徒歩 4分
20万9000 円
東京都渋谷区恵比寿
恵比寿駅から徒歩 2分
相談
東京都渋谷区恵比寿西
恵比寿駅から徒歩 7分
53万9000 円
東京都渋谷区恵比寿西
恵比寿駅から徒歩 1分
55万 円
東京都渋谷区恵比寿西
恵比寿駅から徒歩 4分
55万 円
東京都渋谷区恵比寿西
恵比寿駅から徒歩 8分
95万7000 円
東京都渋谷区広尾
恵比寿駅から徒歩 5分
57万2000 円
東京都渋谷区恵比寿西
恵比寿駅から徒歩 4分
49万5000 円
東京都渋谷区恵比寿
恵比寿駅から徒歩 8分
78万2100 円
東京都渋谷区恵比寿西
恵比寿駅から徒歩 2分
89万1660 円
東京都渋谷区恵比寿
恵比寿駅から徒歩 6分
相談
東京都渋谷区恵比寿
恵比寿駅から徒歩 4分
57万2000 円
東京都渋谷区恵比寿西
恵比寿駅から徒歩 4分
76万6700 円
東京都渋谷区東
恵比寿駅から徒歩 1分





明治通り沿いの角地に立地する、視認性の高い事務所物件です。
ガラスカーテンウォールと重厚感のある外観が調和した、存在感のあるビルです。
来訪時の印象も良く、企業イメージを重視される方にもおすすめです。
機械式駐車場(16台分)を備えておりますが、空き状況・利用条件については現況要確認となります。