恵比寿駅3分 賃貸店舗:TD BLDG. 1階
恵比寿駅からほど近い飲食店可能の新築物件の1階路面店。スケルトン渡しのため、業態に合わせた自由度の高いレイアウトが可能です!
-
アクセス
- 山手線 恵比寿駅 から 徒歩3分
-
賃料
- 88万8250 円
-
管理費等
- 17,754 円
-
礼金
- 1ヶ月
-
保証金
- 10ヶ月
-
専有面積
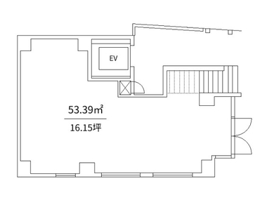
- 53.39m 2 ( 16.15坪 )
-
築年月
- 2025年10月 ( 築1年未満 )
間取り図
詳細・設備・条件・取引について
基本
| 問い合わせ番号 | shinozaki_2_2560 | ||
|---|---|---|---|
| アクセス | 山手線 恵比寿駅 から 徒歩3分 | 種別 | 店舗(一部) |
| 所在地 |
東京都渋谷区恵比寿南1丁目 9-10
|
学校区 | - |
| 問い合わせ番号 | shinozaki_2_2560 |
|---|---|
| アクセス | 山手線 恵比寿駅 から 徒歩3分 |
| 種別 | 店舗(一部) |
| 所在地 |
東京都渋谷区恵比寿南1丁目 9-10
|
費用
| 賃料 | 88万8250円 | 管理・共益費 | 17,754円 |
|---|---|---|---|
| 礼金 | 1ヶ月 | 保証金 | 10ヶ月 |
| 雑費 | - | 償却 | 退去時、 20% |
| 家賃保証会社 | 必加入、 | 保険料 | - |
| 契約期間 | 2年 | 更新料 | 新賃料の1ヶ月分 |
| 仲介手数料 |
1ヶ月 (税込 88万8250円)
|
| 賃料 | 88万8250円 |
|---|---|
| 管理・共益費 | 17,754円 |
| 礼金 | 1ヶ月 |
| 保証金 | 10ヶ月 |
| 償却 | 退去時、 20% |
| 雑費 | - |
| 家賃保証会社 | 必加入、 |
| 保険料 | - |
| 契約期間 | 2年 |
| 更新料 | 新賃料の1ヶ月分 |
| 仲介手数料 |
1ヶ月 (税込 88万8250円)
|
建物
| 間取り | 専有面積 | 53.39m 2 ( 16.15坪 ) | |
|---|---|---|---|
| 構造 | 鉄筋コンクリート造 | バルコニー面積 | - |
| 所在階 / 階数 | 1階 / 5階建 | 完成年月 | 2025年10月 ( 築1年未満 ) |
| 管理 | - | 総戸数 | 5戸 |
| 駐車場 | - | バイク置場 | - |
| 駐輪場 | - | ||
| リフォーム | - | リノベーション | - |
| こだわり条件 |
|
||
| 設備・条件 | 外部ダクト有(屋上)、エレベーター1基 | ||
| 間取り | |||
|---|---|---|---|
| 専有面積 | 53.39m 2 ( 16.15坪 ) | ||
| 構造 | 鉄筋コンクリート造 | ||
| バルコニー面積 | - | ||
| 所在階 / 階数 | 1階 / 5階建 | ||
| 完成年月 | 2025年10月 ( 築1年未満 ) | ||
| 管理 | - | ||
| 総戸数 | 5戸 | ||
| 駐車場 | - | ||
| バイク置場 | - | ||
| 駐輪場 | - | ||
| リフォーム | - | ||
| リノベーション | - | ||
| こだわり条件 | |||
| 設備・条件 | 外部ダクト有(屋上)、エレベーター1基 | ||
その他
| 現況 ・ 入居 | 空室 ・ 即時 | 取引態様 | 仲介 |
|---|---|---|---|
| 次回更新日 | 2026/03/01 | 担当者 | - |
| 現況 ・ 入居 | 空室 ・ 即時 |
|---|---|
| 取引態様 | 仲介 |
| 次回更新日 | 2026/03/01 |
| 担当者 | - |
恵比寿駅3分 賃貸店舗:TD BLDG.の詳しい情報やお問い合わせはこちら!
お問い合わせ先:株式会社 シノザキ
免許番号:東京都知事(12)第35819号
営業時間:9:00~18:30 定休日:土曜日・日曜・祝日
TEL:03-5420-8081
こちらの物件もあります。
101万8325 円
東京都渋谷区恵比寿
恵比寿駅から徒歩 3分
58万9100 円
東京都渋谷区恵比寿西
恵比寿駅から徒歩 5分
236万6650 円
東京都渋谷区広尾
恵比寿駅から徒歩 5分
323万304 円
東京都渋谷区東
恵比寿駅から徒歩 5分
128万8760 円
東京都渋谷区恵比寿
恵比寿駅から徒歩 4分
49万5000 円
東京都渋谷区恵比寿
恵比寿駅から徒歩 8分
92万1844 円
東京都渋谷区恵比寿西
恵比寿駅から徒歩 4分
52万8000 円
東京都渋谷区恵比寿西
恵比寿駅から徒歩 2分
287万9745 円
東京都渋谷区恵比寿南
恵比寿駅から徒歩 3分
20万9000 円
東京都渋谷区恵比寿
恵比寿駅から徒歩 2分
78万2100 円
東京都渋谷区恵比寿西
恵比寿駅から徒歩 2分
99万 円
東京都渋谷区恵比寿西
恵比寿駅から徒歩 3分
77万 円
東京都渋谷区恵比寿西
恵比寿駅から徒歩 3分
相談
東京都渋谷区恵比寿西
恵比寿駅から徒歩 4分
182万2689 円
東京都渋谷区恵比寿
恵比寿駅から徒歩 1分





新築のため設備面もクリアで、これから開業される方にも導入しやすい環境です。
周辺には飲食店や物販店が点在し、人通りも多い魅力的な立地です。
更新時には事務手数料として新賃料の0.5ヶ月分が必要となります。
恵比寿エリアで自由度高く店舗づくりをしたい方におすすめの一室です!