恵比寿駅3分 賃貸店舗:EBISU-NISHI 110 BLDG. 301
駒沢通り沿い、駅徒歩3分の事務所仕様・サービス店舗向き区画。
-
アクセス
- 山手線 恵比寿駅 から 徒歩3分
-
賃料
- 31万9000 円
-
管理費等
- 22,000 円
-
礼金
- 2ヶ月
-
保証金
- 8ヶ月
-
専有面積
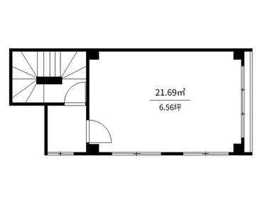
- 21.69m 2 ( 6.56坪 )
-
築年月
- 1974年09月 ( 築51年 )
間取り図
詳細・設備・条件・取引について
基本
| 問い合わせ番号 | shinozaki_2_2552 | ||
|---|---|---|---|
| アクセス |
山手線 恵比寿駅
から 徒歩3分
東急東横線 代官山駅 から 徒歩10分 |
種別 | 店舗(一部) |
| 所在地 |
東京都渋谷区恵比寿西1丁目 10-6
|
学校区 | - |
| 問い合わせ番号 | shinozaki_2_2552 |
|---|---|
| アクセス |
山手線 恵比寿駅
から 徒歩3分
東急東横線 代官山駅 から 徒歩10分 |
| 種別 | 店舗(一部) |
| 所在地 |
東京都渋谷区恵比寿西1丁目 10-6
|
費用
| 賃料 | 31万9000円 | 管理・共益費 | 22,000円 |
|---|---|---|---|
| 礼金 | 2ヶ月 | 保証金 | 8ヶ月 |
| 雑費 | - | 償却 | 退去時、 3ヶ月 |
| 家賃保証会社 | - | 保険料 | - |
| 契約期間 | 定期借家、 6年 | 更新料 | - |
| 仲介手数料 |
1ヶ月 (税込 31万9000円)
|
| 賃料 | 31万9000円 |
|---|---|
| 管理・共益費 | 22,000円 |
| 礼金 | 2ヶ月 |
| 保証金 | 8ヶ月 |
| 償却 | 退去時、 3ヶ月 |
| 雑費 | - |
| 家賃保証会社 | - |
| 保険料 | - |
| 契約期間 | 定期借家、 6年 |
| 更新料 | - |
| 仲介手数料 |
1ヶ月 (税込 31万9000円)
|
建物
| 間取り | 専有面積 | 21.69m 2 ( 6.56坪 ) | |
|---|---|---|---|
| 構造 | 鉄骨造 | バルコニー面積 | - |
| 所在階 / 階数 | 3階 / 5階建 | 完成年月 | 1974年09月 ( 築51年 ) |
| 管理 | - | 総戸数 | - |
| 駐車場 | - | バイク置場 | - |
| 駐輪場 | - | ||
| リフォーム | - | リノベーション | - |
| こだわり条件 |
|
||
| 設備・条件 | 契約満了:2032年3月31日 造作価格:無償/事務所仕様の現状渡し/再契約料:未定/中途礼金:賃料の1.5ヶ月(2029年3月31日発生) 指定火災保険加入必須※原則は当社指定の保証会社にご加入いただきます。 業態制限:飲食・ペット・楽器不可/営業時間制限:24時迄 |
||
| 間取り | |||
|---|---|---|---|
| 専有面積 | 21.69m 2 ( 6.56坪 ) | ||
| 構造 | 鉄骨造 | ||
| バルコニー面積 | - | ||
| 所在階 / 階数 | 3階 / 5階建 | ||
| 完成年月 | 1974年09月 ( 築51年 ) | ||
| 管理 | - | ||
| 総戸数 | - | ||
| 駐車場 | - | ||
| バイク置場 | - | ||
| 駐輪場 | - | ||
| リフォーム | - | ||
| リノベーション | - | ||
| こだわり条件 | |||
| 設備・条件 | 契約満了:2032年3月31日 造作価格:無償/事務所仕様の現状渡し/再契約料:未定/中途礼金:賃料の1.5ヶ月(2029年3月31日発生) 指定火災保険加入必須※原則は当社指定の保証会社にご加入いただきます。 業態制限:飲食・ペット・楽器不可/営業時間制限:24時迄 |
||
その他
| 現況 ・ 入居 | 空室 ・ | 取引態様 | 仲介 |
|---|---|---|---|
| 次回更新日 | 2026/04/28 | 担当者 | - |
| 現況 ・ 入居 | 空室 ・ |
|---|---|
| 取引態様 | 仲介 |
| 次回更新日 | 2026/04/28 |
| 担当者 | - |
恵比寿駅3分 賃貸店舗:EBISU-NISHI 110 BLDG.の詳しい情報やお問い合わせはこちら!
お問い合わせ先:株式会社 シノザキ
免許番号:東京都知事(12)第35819号
営業時間:9:00~18:30 定休日:土曜日・日曜・祝日
TEL:03-5420-8081
こちらの物件もあります。
15万700 円
東京都渋谷区恵比寿
恵比寿駅から徒歩 6分
71万5000 円
東京都渋谷区恵比寿西
恵比寿駅から徒歩 5分
55万 円
東京都渋谷区恵比寿西
恵比寿駅から徒歩 3分
22万8800 円
東京都渋谷区東
恵比寿駅から徒歩 5分
75万2565 円
東京都渋谷区東
恵比寿駅から徒歩 7分
24万7500 円
東京都渋谷区恵比寿西
恵比寿駅から徒歩 4分
60万5000 円
東京都渋谷区恵比寿西
恵比寿駅から徒歩 5分
48万5100 円
東京都渋谷区恵比寿
恵比寿駅から徒歩 4分
89万7820 円
東京都渋谷区東
恵比寿駅から徒歩 8分
53万9000 円
東京都渋谷区恵比寿西
恵比寿駅から徒歩 1分
217万3248 円
東京都渋谷区恵比寿西
恵比寿駅から徒歩 4分
40万7000 円
東京都渋谷区恵比寿西
恵比寿駅から徒歩 7分
63万5525 円
東京都渋谷区恵比寿
恵比寿駅から徒歩 3分
相談
東京都渋谷区恵比寿西
恵比寿駅から徒歩 5分





駒沢通り沿いに立地し、駅から徒歩3分、恵比寿神社近くの物件です。
室内は事務所仕様での引き渡しとなりますが、来店型のサービス店舗としての利用にも適した区画です。
業種についてはご相談可能となります。
※飲食店・ペット・楽器の利用は不可となります。