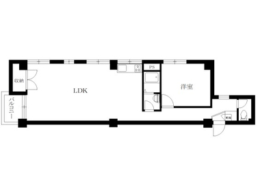
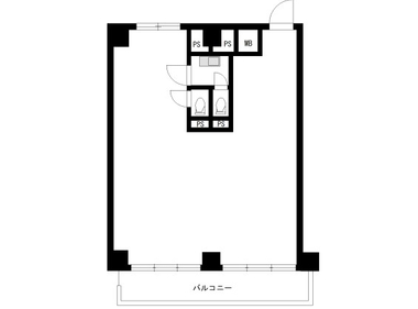
自然光が入りやすく、明るく快適な室内が魅力の事務所です。 セキュリティ設備を備えており、安心して業務に取り組める環境が整っています。 室内にトイレを2か所備えており、日常業務でも使いやすい環境です。 周辺には飲食店も多く、ランチや打ち合わせ時にも便利な立地となっています。
明治通り沿いに位置する視認性のあるオフィスビルの10階区画です。 通りに面した建物のため来客時の案内もしやすく、落ち着いて業務に取り組みやすいオフィス環境が整っています。 建物にはセキュリティ設備が備わっており、安心して利用できる点もポイントです。 上階ならではの開放感も感じられる区画で、オフィス利用に適した空間です。
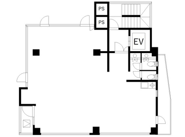
スタイリッシュなガラス張りの外観が目を引くオフィスビルです。 2023年にエントランスがリニューアルされており、来訪者を迎える共用部も落ち着いた印象に整えられています。 室内はOAフロア仕様でレイアウトの自由度が高く、個別空調によりフロアごとの温度管理も可能です。 男女別トイレも備えられており、日常の使い勝手にも配慮されています。 また、エレベーターには不停止機能があり、セキュリティ面にも配慮された仕様です。 機能性とデザイン性のバランスが取れたオフィスとしてご検討いただけます。
スタイリッシュなガラス張りの外観が目を引くオフィスビルです。 2023年にエントランスがリニューアルされており、来訪者を迎える共用部も落ち着いた印象に整えられています。 室内はOAフロア仕様でレイアウトの自由度が高く、個別空調によりフロアごとの温度管理も可能です。 男女別トイレも備えられており、日常の使い勝手にも配慮されています。 また、エレベーターには不停止機能があり、セキュリティ面にも配慮された仕様です。 機能性とデザイン性のバランスが取れたオフィスとしてご検討いただけます。
恵比寿駅徒歩1分、駒沢通り沿いに立地する新築の事務所物件。 緩やかな曲線を描くガラスファサードと、低層部の落ち着いたタイル仕上げが調和した、デザイン性の高い外観が特徴です。 内装は事務所仕様となっており、軽店舗の利用もご相談可能です。 共用部には給湯室およびトイレ2箇所を備えています。 ※飲食店は不可となります。
明治通りと駒沢通りの交差点近くに立地する、アクセス性の良い事務所物件です。 視認性のある立地に加え、エレベーター(不停止機能あり)やエントランスオートロックを備えており、来訪時の印象やセキュリティ面も配慮されています。 室内はOAフロア仕様、トイレは男女別となっており、事務所として使い勝手の良い設備が整っています。 立地と設備のバランスが取れたおすすめの物件です。
明治通りと駒沢通りの交差点近くに立地する、アクセス性の良い事務所物件です。 視認性のある立地に加え、エレベーター(不停止機能あり)やエントランスオートロックを備えており、来訪時の印象やセキュリティ面も配慮されています。 室内はOAフロア仕様、トイレは男女別となっており、事務所として使い勝手の良い設備が整っています。 立地と設備のバランスが取れたおすすめの物件です。
24時間利用が可能な、コンクリート打ちっぱなしのスタイリッシュなデザイナーズオフィス。 洗練された外観が印象的な建物で、ワークスタイルに創造性を取り込めます。 サービス店舗も業種により相談可能です。 契約は定期借家となり、再契約のご相談も可能です(再契約料:新賃料の1ヶ月分)。
飲食不可となります。業種ご相談ください。
「恵比寿」駅・「代官山」駅の2駅が利用でき、アクセス性の高い立地です。 建物は駒沢通りに面しており、視認性も良好。 周辺には店舗やカフェが点在し、日々の業務にも便利な環境です。 業務拠点としてバランスの取れたロケーションをお探しの企業様に適したオフィスです。
明治通りに面し、東交番前交差点の角地に位置する視認性の高いオフィスビルです。 ガラス面と構造体を活かした印象的な外観が特徴で、来訪者への案内もしやすいロケーションです。 恵比寿・渋谷・代官山の3駅が利用可能な立地で、各エリアへのアクセスも良好。 周辺には飲食店やショップが点在し、利便性と街の雰囲気を兼ね備えた環境です。 デザイン性と立地のバランスが取れた、来客対応のあるオフィスにも適した物件です。
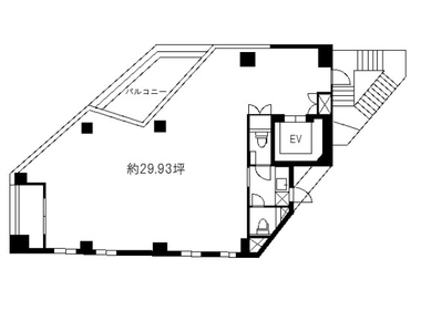
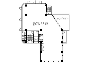
恵比寿駅と代官山駅の2駅が利用可能な立地。 周辺には飲食店やショップが点在し、恵比寿らしい落ち着いた街並みが広がります。 約37.95坪の貸室は三面採光の設計で、室内全体に自然光が入る明るい空間です。 開放感のあるワークスペースを確保しやすく、快適な執務環境が整っています。 また、柱の配置バランスにも配慮された間取りで、動線設計や部署ごとのゾーニングにも対応しやすいレイアウトです。
24時間利用が可能な、コンクリート打ちっぱなしのスタイリッシュなデザイナーズオフィス。 洗練された外観が印象的な建物で、ワークスタイルに創造性を取り込めます。 サービス店舗も業種により相談可能です。 契約は定期借家となり、再契約のご相談も可能です(再契約料:新賃料の1ヶ月分)。
JR山手線「恵比寿」駅西口改札の東側出口を出て直ぐ目の前の立地(約20m・徒歩15秒)のビルです。 金融機関・郵便局・コンビニ・飲食店が周辺に揃い、日常業務に便利なビジネス環境が整っています。 エレベーター2基(8階へは1基)を備え、24時間有人管理によりセキュリティ面も安心。 男女別トイレはビル側で清掃管理されており、共用部の管理体制も良好です。 機械式駐車場を併設しており、時間貸し利用にも対応しています。
恵比寿南の落ち着いたエリアに位置するオフィス物件です。 コンクリート打ち放しの外観が印象的で、建物全体に洗練された雰囲気が感じられます。 開放感のあるエントランスアプローチも特徴的で、来訪者を迎える空間としても印象に残る造りです。 貸室はセットアップオフィスとして利用でき、内装付き、また内装・家具付きのプランから選択可能です。 設備も整っており、オフィスとして使いやすい環境が整えられています。 現在リニューアル工事を行なっており、7月に完了予定です。 落ち着いた周辺環境の中で、デザイン性のある空間が整えられるオフィスです。
恵比寿南の落ち着いたエリアに位置するオフィス物件です。 コンクリート打ち放しの外観が印象的で、建物全体に洗練された雰囲気が感じられます。 開放感のあるエントランスアプローチも特徴的で、来訪者を迎える空間としても印象に残る造りです。 貸室はセットアップオフィスとして利用でき、内装付き、また内装・家具付きのプランから選択可能です。 設備も整っており、オフィスとして使いやすい環境が整えられています。 現在リニューアル工事を行なっており、7月に完了予定です。 落ち着いた周辺環境の中で、デザイン性のある空間が整えられるオフィスです。
恵比寿南の落ち着いたエリアに位置するオフィス物件です。 コンクリート打ち放しの外観が印象的で、建物全体に洗練された雰囲気が感じられます。 開放感のあるエントランスアプローチも特徴的で、来訪者を迎える空間としても印象に残る造りです。 貸室はセットアップオフィスとして利用でき、内装付き、また内装・家具付きのプランから選択可能です。 設備も整っており、オフィスとして使いやすい環境が整えられています。 現在リニューアル工事を行なっており、7月に完了予定です。 落ち着いた周辺環境の中で、デザイン性のある空間が整えられるオフィスです。
恵比寿南の落ち着いたエリアに位置するオフィス物件です。 コンクリート打ち放しの外観が印象的で、建物全体に洗練された雰囲気が感じられます。 開放感のあるエントランスアプローチも特徴的で、来訪者を迎える空間としても印象に残る造りです。 貸室はセットアップオフィスとして利用でき、内装付き、また内装・家具付きのプランから選択可能です。 設備も整っており、オフィスとして使いやすい環境が整えられています。 現在リニューアル工事を行なっており、7月に完了予定です。 落ち着いた周辺環境の中で、デザイン性のある空間が整えられるオフィスです。
人気の恵比寿・代官山エリアにある駅近物件です。 JR山手線恵比寿駅から徒歩3分、日比谷線の恵比寿駅4番出口からは徒歩1分です! 駅近ながら、周辺は緑が多く落ち着いた環境です。 機械警備、男女別トイレ、AC2台など、設備も充実しています。 1階にはコンビニ(ローソン)があり、便利です♪ ※室内写真およびパノラマ動画は同タイプ別部屋参考資料となります。
代官山駅徒歩2分の立地に位置する、B1階・1階・2階の一括貸し区画です。 1階と2階はうち階段でつながる構成で、地下1階のみ分割相談が可能となっています。 前テナントの内装を活かした居抜き相談が可能ですが、明渡し時はスケルトン返しとなります。 物販店舗やサービス店舗、事務所利用などの用途でご検討いただけます(飲食店不可)。
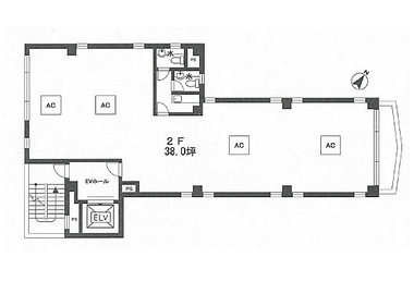
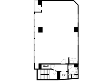
1フロア1テナントで落ち着いて利用できるオフィスです。 前面ガラス張りの明るい室内と無柱空間により、開放感のある執務環境を実現。整形で使いやすく、レイアウトもしやすい間取りとなっております。 機械警備・個別空調完備で安心してご利用いただけます。
駅近ながら静かな環境が魅力です。専用のエントランスは白い石貼りで重厚感があります。バルコニーあり。
スケルトン天井を採用した開放感のある空間と、洗練された外観が印象的なビル内事務所です。 24時間利用・入退室が可能なため、柔軟な働き方にも対応できます。 男女別トイレや機械警備、LED照明など設備面も充実しており、快適で安心してご利用いただける環境が整っています。
代官山駅徒歩6分・恵比寿駅徒歩9分の好立地。 約54.23坪のゆとりある3階区画。 事務所はもちろん、物販・サロン・スクール等のサービス店舗も相談可能。 人気の恵比寿西アドレスで集客・来客対応にも適した環境です。※飲食不可
駒沢通り沿いに位置する9階建てビルの最上階区画です。 現テナントは整体サロンとして利用されています。 通りに面した建物で、事務所利用のほかサービス店舗としての利用もご検討いただける区画です。
恵比寿南エリアの高台に位置する角地の1階路面店舗です。 周辺には物販店やサービス店舗が点在する落ち着いた街並み。 現況は靴専門店として利用中で、居抜きでの相談も可能です。 飲食店での利用は不可となります。
2024年7月竣工のオフィスビル。 ガラス面を基調とした外観と、タイル仕上げの低層部が印象的なデザインです。 1階にはゆとりのあるエントランスホールを設け、セキュリティーゲートを設置。 来訪者の導線にも配慮された仕様となっています。 恵比寿駅から徒歩2分の立地で、オフィス利用に適した区画です。
飲食店舗や各種店舗が立ち並ぶエリアに位置し、利便性の高いロケーションが魅力の事務所物件です。 周辺にはオフィスも多く、にぎわいがありながらも落ち着いた環境が保たれています。 来客対応のある事務所にも適しており、日常業務の動線も良好です。 立地重視で物件をお探しの方におすすめできる一室です。




